索  引  号 主题分类
发文字号 制发机构
有效期限 有效性
成文日期 2020-02-16 发布日期 2020-02-16
标        题 临夏市第十二幼儿园项目规划设计方案批前公示

临夏市第十二幼儿园项目规划设计方案批前公示

发布时间:2020-02-16 来源:市政府办 浏览次数:

字号:

收藏

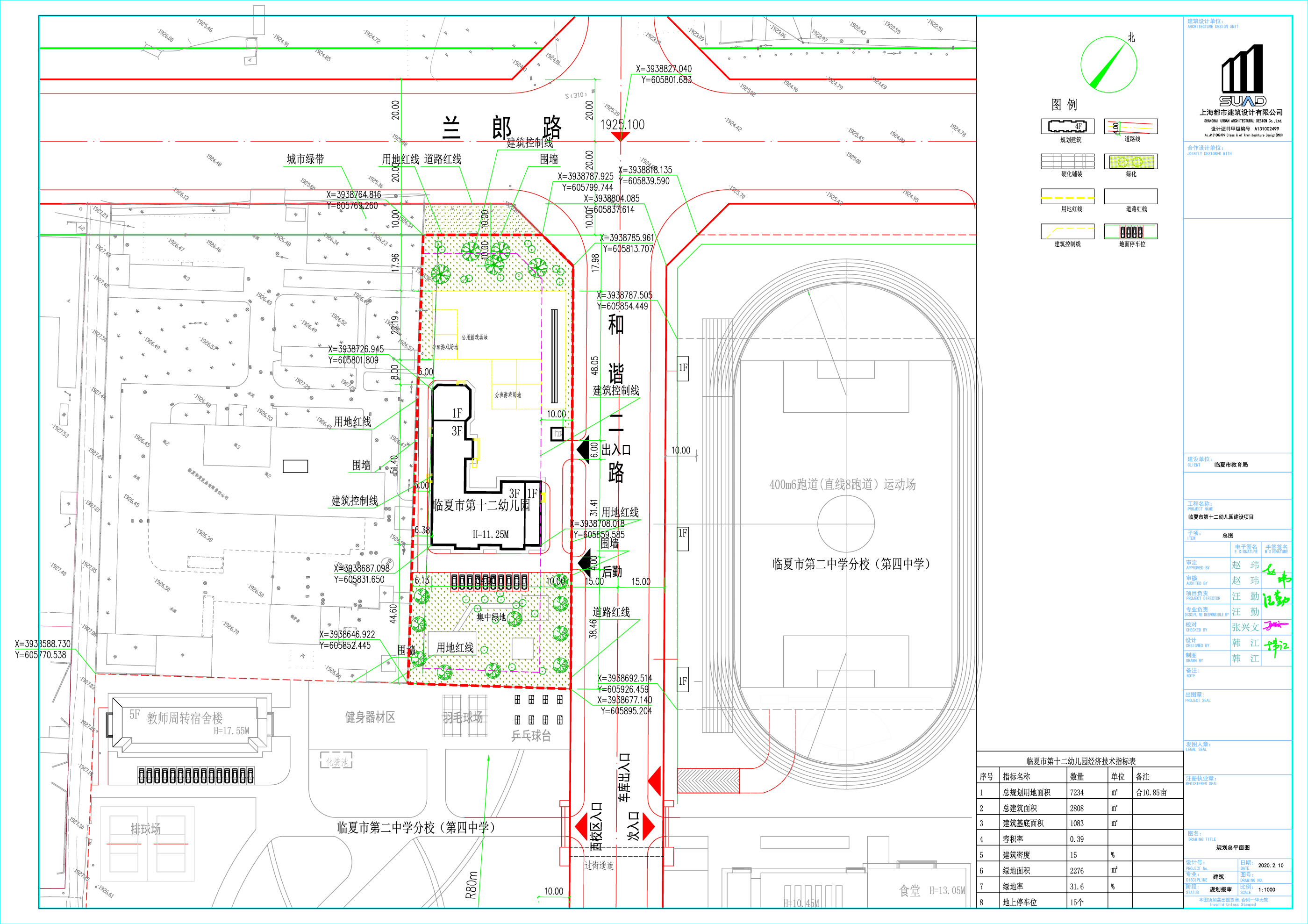
临夏市教育局向我局申报了临夏市第十二幼儿园项目规划设计方案,我局已组织专家进行了设计方案审查,现依据《中华人民共和国城乡规划法》、《甘肃省城乡规划条例》、《甘肃省建设项目规划许可办法》等相关法律规定,在规划许可之前,将有关情况予以公开公示,接受社会公众监督。  

一、项目位置

该地块位于临夏市枹罕镇罗家堡村,东至和谐二路,南至空地,西至临夏华夏乳品有限责任公司,北至兰郎路。

  二、规划条件

用地性质中小学用地,建设用地面积:10.85亩,容积率:≦0.8,建筑密度:≦30% ,绿地率:≧30%,建筑总体高度:≦24米。   

  三、设计方案中的主要内容及指标   

  新建一栋3层幼儿园和一栋1层门卫,总建筑面积2808平方米,容积率0.39,建筑密度15%,绿地率31.6%,建筑高度11.25米。

 公示时间:7天,2020年2月14日至2020年2月20日。

  公示期间,如有意见和建议请以书面形式反馈临夏州自然资源局(单位需盖公章,个人需署真实姓名及联系方式),逾期未提出的,视为同意方案或放弃权利,我局将依法作出相关行政许可。

  联系电话:0930-6311395  传真:0930-6314588, QQ邮箱:275693381@qq.com

  联系地址:临夏市北滨河东路临夏州自然资源局619室(原州国土资源局)

  邮编:731100

临夏市第十二幼儿园平面图.jpg.jpg

临夏市第十二幼儿园项目鸟瞰图.jpg